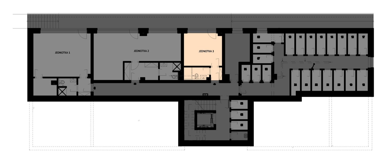
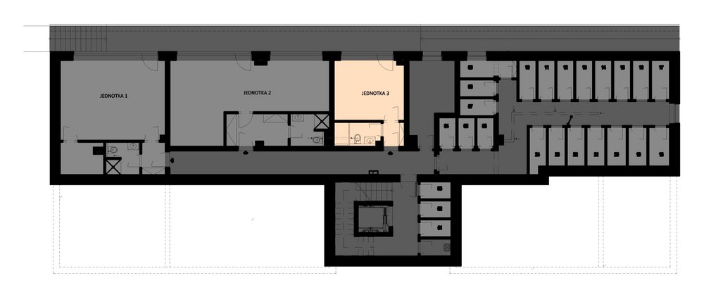
Atelier 3
- Podlaží
- 1.PP
- Dispozice
- 1+kk/2+kk
- Obytná plocha
- 20,5 m2
- Orientace
- západ
- Stav
- Prodaný
| Místnost | Plocha |
|---|---|
| Vstup | 1,9 m2 |
| Kancelář | 14,5 m2 |
| Sociální zařízení | 4,1 m2 |
| Místnosti celkem | 20,5 m2 |
Máte zájem o tento byt?
Vyplňte formulář nebo nás kontaktujte.

